Продажа дома, Новоживотинное с., Автомобилистов ул., Воронежская область
- Регион
- Воронежская область
| Адрес | Новоживотинное с., Автомобилистов ул.Объект на карте |
- Площадь дома
- 180.00 м2
- Площадь участка
- 10.00 сот.
- Дата обновления
- 05.05.2026
- Дата размещения
- 17.12.2025
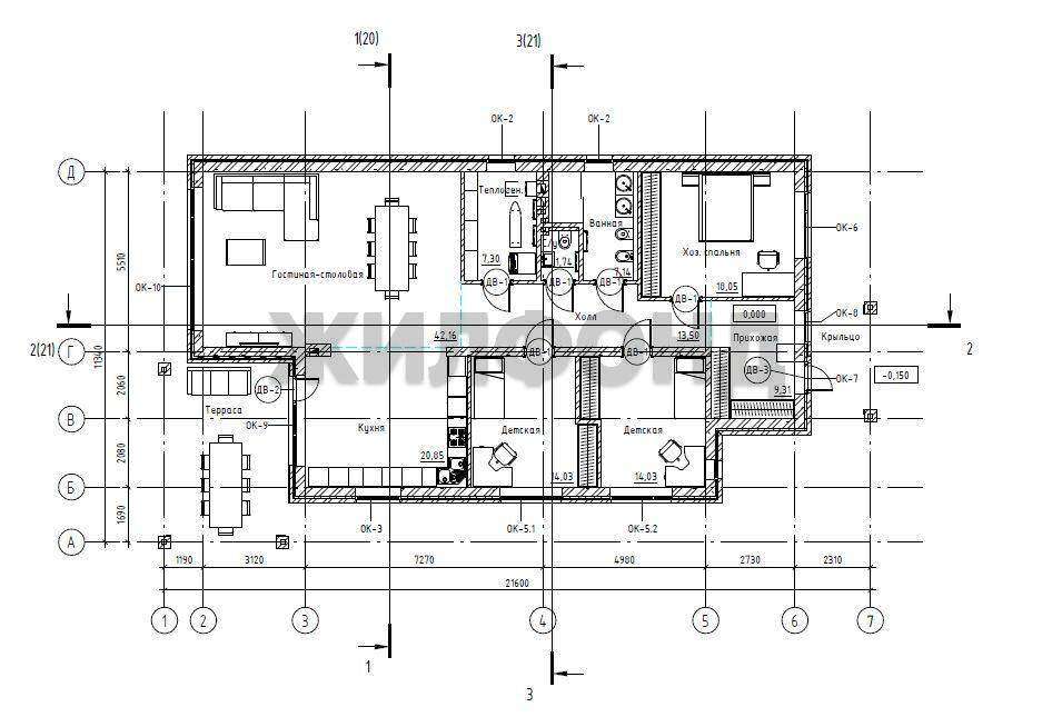
Коттедж по ул. Автомобилистов. Общей площадью: 180.00 кв. м. Продаётся загородный дом 180 м? на первой линии Дона в СНТ Дон-2, п. Новоживотинное - редкое предложение для тех, кто ищет дом с характером и по-настоящему уникальным расположением.
Дом расположен на первой линии, с открытым видом на Дон - из окон каждый сезон открываются новые живые пейзажи. Это место, где тишина, простор и природа ощущаются каждый день, независимо от времени года.
Планировка и интерьер-
Просторная гостиная 42 м? с камином и панорамным видом на реку
Полностью оборудованная кухня 21 м?
3 изолированные спальни
2 санузла
Дизайнерский ремонт - всё продумано до мелочей
Дом строили для себя, на материалах и инженерии не экономили. Фактически в доме практически не жили.
Коммуникации и инженерия-
Газ
Электричество 3 фазы
Собственная скважина
Современные системы очистки воды
Отдельные системы подачи воды в подогреваемый чан
Стабилизаторы напряжения
Участок и зона отдыха-
Отдельно стоящая баня
Зона барбекю
Костровая зона
Подогреваемый чан, расположенный на террасе, с прямым видом на реку Дон
Ландшафтный дизайн
Автополив
Инфраструктура и безопасность-
Асфальтированный подъезд
Дороги чистят круглый год
Охраняемая территория
Въезд через шлагбаум в осенне-зимний период
Бонус-
В доме остаётся вся мебель и техника, камин, телевизоры - всё, что есть в доме. Заезжай и живи без дополнительных вложений.
?? До города - 25 км
?? Подходит для круглогодичного проживания
Дом для тех, кто ценит вид, приватность, качество строительства и высокий уровень комфорта.
Звоните - такие объекты на первой линии Дона появляются крайне редко.
Возможен обмен на вашу недвижимость.
При звонке, пожалуйста, сообщите номер варианта -
JV008036110533
Дом расположен на первой линии, с открытым видом на Дон - из окон каждый сезон открываются новые живые пейзажи. Это место, где тишина, простор и природа ощущаются каждый день, независимо от времени года.
Планировка и интерьер-
Просторная гостиная 42 м? с камином и панорамным видом на реку
Полностью оборудованная кухня 21 м?
3 изолированные спальни
2 санузла
Дизайнерский ремонт - всё продумано до мелочей
Дом строили для себя, на материалах и инженерии не экономили. Фактически в доме практически не жили.
Коммуникации и инженерия-
Газ
Электричество 3 фазы
Собственная скважина
Современные системы очистки воды
Отдельные системы подачи воды в подогреваемый чан
Стабилизаторы напряжения
Участок и зона отдыха-
Отдельно стоящая баня
Зона барбекю
Костровая зона
Подогреваемый чан, расположенный на террасе, с прямым видом на реку Дон
Ландшафтный дизайн
Автополив
Инфраструктура и безопасность-
Асфальтированный подъезд
Дороги чистят круглый год
Охраняемая территория
Въезд через шлагбаум в осенне-зимний период
Бонус-
В доме остаётся вся мебель и техника, камин, телевизоры - всё, что есть в доме. Заезжай и живи без дополнительных вложений.
?? До города - 25 км
?? Подходит для круглогодичного проживания
Дом для тех, кто ценит вид, приватность, качество строительства и высокий уровень комфорта.
Звоните - такие объекты на первой линии Дона появляются крайне редко.
Возможен обмен на вашу недвижимость.
При звонке, пожалуйста, сообщите номер варианта -
JV008036110533

















